The Alley | 3825 NW 166 | Row B | B12
Office Suite Space For Lease w/ 1 Office, Loft, Conference Room, 1 Restroom
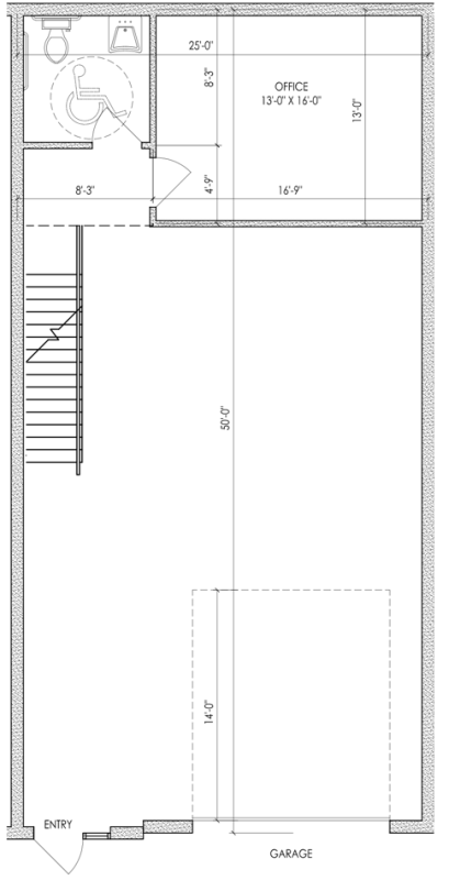
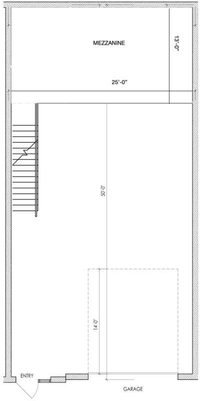
Suite B12 at The Alley at PORT164 is a 1,575 SF flex warehouse with modern industrial design, dark stained concrete floors, and a mezzanine with a custom steel staircase. Located at NW 164th & Portland/HWY 77, it’s ideal for light industrial, creative workspaces, e-commerce, and service-based businesses seeking high-visibility warehouse space for rent.
SQUARE FOOTAGE
FLOOR 1 SF
FLOOR 2 SF
TOTAL SF
1,250
325
1,575 (MOL)
USE
flex
/
office suite
/
warehouse
/
showroom
STATUS
Leased | the backdrop
LEASE RATE
RENT/YR
- - -
CAM/YR
- - -
TOTAL/YR
- - -
RENT/MO
- - -
CAM/MO
- - -
TOTAL/MO
- - -
RENT/FT
- - -
CAM/FT
- - -
TOTAL/FT
- - -
RENT/FT
- - -
CAM/FT
- - -
TOTAL/FT
- - -
Rate fixed for 3 years.
Rate fixed for 3 years.
1 Year Lease
If you’re searching for warehouse space with an office in Edmond that balances flexibility, visibility, and design, this single-bay warehouse space at The Alley at PORT164 is a strong fit. Located along the central Alley drive within the PORT164 development, the space measures approximately 25 feet wide by 50 feet deep and is well suited for light industrial, showroom-forward, or garage-use operations seeking a polished environment.
The front-facing overhead garage door opening is glassed in with a commercial glass system designed to flood the space with natural light. While the steel overhead door remains fully operational behind the glass for security or light control, the glass storefront presentation reinforces visibility and branding along one of the most active internal corridors at PORT164.
Inside, the layout includes a dedicated 13 foot by 16 foot enclosed office and a handicap-accessible restroom conveniently located near the front of the suite. Climate control is provided by a two-unit mini-split HVAC system, offering independent temperature control for the office and the balance of the warehouse. The main floor, mezzanine level, and office are fully carpeted, creating a more finished and comfortable workspace than a typical warehouse suite.
A mezzanine level provides additional usable space and is accessed via a staircase constructed of matte black steel with decorative wood accents, complemented by matching black steel handrails that lean into a modern, industrial aesthetic. Combined with sheetrocked and painted walls, a basic electrical and lighting package, and strong natural light, the space delivers a flexible warehouse-with-office solution that feels intentional and brand-ready.
This warehouse space for lease at The Alley at PORT164 offers high visibility, modern finishes, and a central Edmond location, making it an ideal option for businesses seeking light industrial space in a thoughtfully designed mixed-use environment.
The front-facing overhead garage door opening is glassed in with a commercial glass system designed to flood the space with natural light. While the steel overhead door remains fully operational behind the glass for security or light control, the glass storefront presentation reinforces visibility and branding along one of the most active internal corridors at PORT164.
Inside, the layout includes a dedicated 13 foot by 16 foot enclosed office and a handicap-accessible restroom conveniently located near the front of the suite. Climate control is provided by a two-unit mini-split HVAC system, offering independent temperature control for the office and the balance of the warehouse. The main floor, mezzanine level, and office are fully carpeted, creating a more finished and comfortable workspace than a typical warehouse suite.
A mezzanine level provides additional usable space and is accessed via a staircase constructed of matte black steel with decorative wood accents, complemented by matching black steel handrails that lean into a modern, industrial aesthetic. Combined with sheetrocked and painted walls, a basic electrical and lighting package, and strong natural light, the space delivers a flexible warehouse-with-office solution that feels intentional and brand-ready.
This warehouse space for lease at The Alley at PORT164 offers high visibility, modern finishes, and a central Edmond location, making it an ideal option for businesses seeking light industrial space in a thoughtfully designed mixed-use environment.
Square Footage
Floor 1 SF: 1,250
Floor 2 SF: 325
Total SF: 1,575 (MOL)
Use
flex, office suite, warehouse, showroom
Ceiling Height
Min: 8
Max: 22
Lighting Types
LED, Flourescent, Natural Light
Electrical Service
Service Type: 3-Phase
Voltage: 120/208v
HVAC
HVAC Type: Mini-Split
Units: 2
Ducting: N/A
Communications On-Site
Cox
Flooring Types
Polished Concrete, Carpet
Ceiling Types
Open Steel Truss, Sheetrock
Wall Types
Textured Sheetrock
Baseboard Types
Vinyl
Fire Protection
Fire Extinguisher, Smoke Detectors, Building-Wide Fire Monitoring, Emergency Pull Station
View all 35 space photos
SIGNAGE
Overhead signage is available above each bay’s commercial glass door, with single-bay suites allotted half of the concrete outset space and the other half shared with the neighboring tenant. If a tenant occupies both bays, a single, larger sign will be used. All signage will be uniform in material and installation, featuring a .080” thick aluminum panel with a laminated digital print overlay that includes the tenant’s logo and/or typography in appropriate colors. Background options are limited to white, light grey, dark grey, or black.
PARKING
Each suite includes one colored concrete individual parking spaces directly in front of each suite. Each suite also includes parking opportunities directly in front of the garage door. Overflow parking is available on the north end of the development.
Can't find the space you're looking for?
Get notified by text or email when spaces become available!
Subscribe now
HAVE QUESTIONS?
Check out our Frequently Asked Questions for prospective tenants.
HAVE QUESTIONS?
Check out our Frequently Asked Questions for prospective tenants.





































